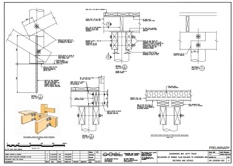
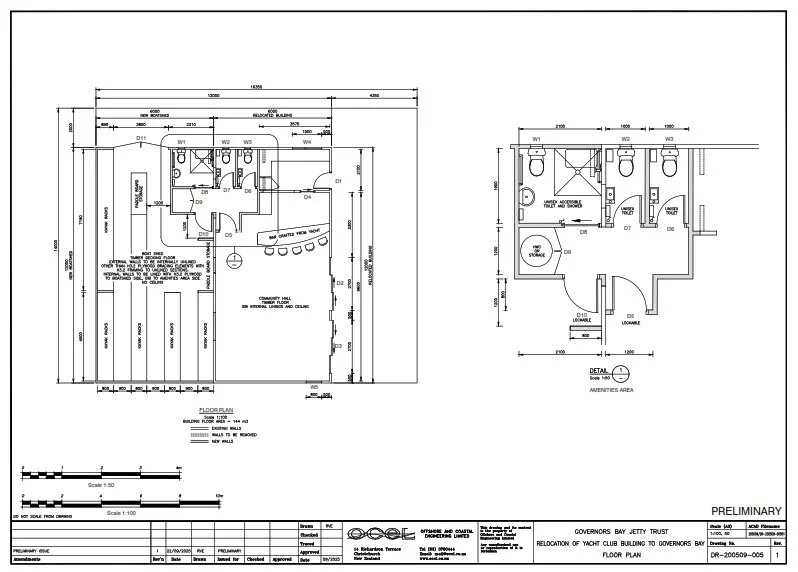
Boat house designs

Click on the images to see the current engineering designs for this project. They are preliminary drawings and some of them will change.

Location and outside of building

Interior of building - boat storage building to the left, club house to the right

Joins and fixings

Deck specifications